锦华装饰
400-155-8898

发布时间:2973-04-15阅读次数:152次
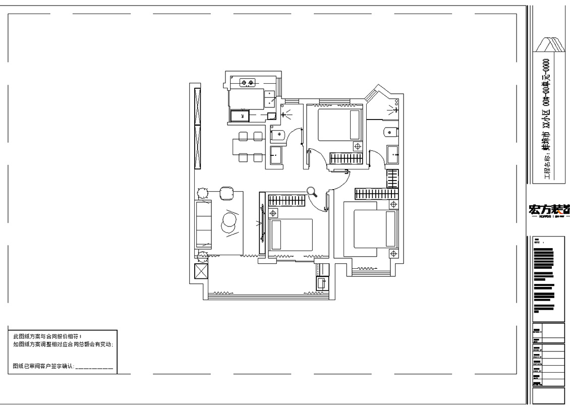
天辰揽境-108-原木奶油

装修模式:全包 风格:现代简约 人气:152
户型:三室两厅 片区: 装修面积:108平

设计师:

公   司:

电   话:

设计师级别:

收费标准:

设计理念:

预约






该设计师其它作品

  • 品质之选

    蚌埠家装示范品牌

  • 设计专家

    代表地区优秀设计声音

  • 放心工程

    集25年工程管理经验之大成

  • 全案管家

    省时、省力更省心